PRZYSTĄPIENIE DO SPORZĄDZENIA MIEJSCOWEGO PLANU ZAGOSPODAROWANIA PRZESTRZENNEGO MIASTA ŚWINOUJŚCIE W REJONIE UL. WOJSKA POLSKIEGO ORAZ OSIEDLA POSEJDON.
Dodano: 622 tygodnie temu
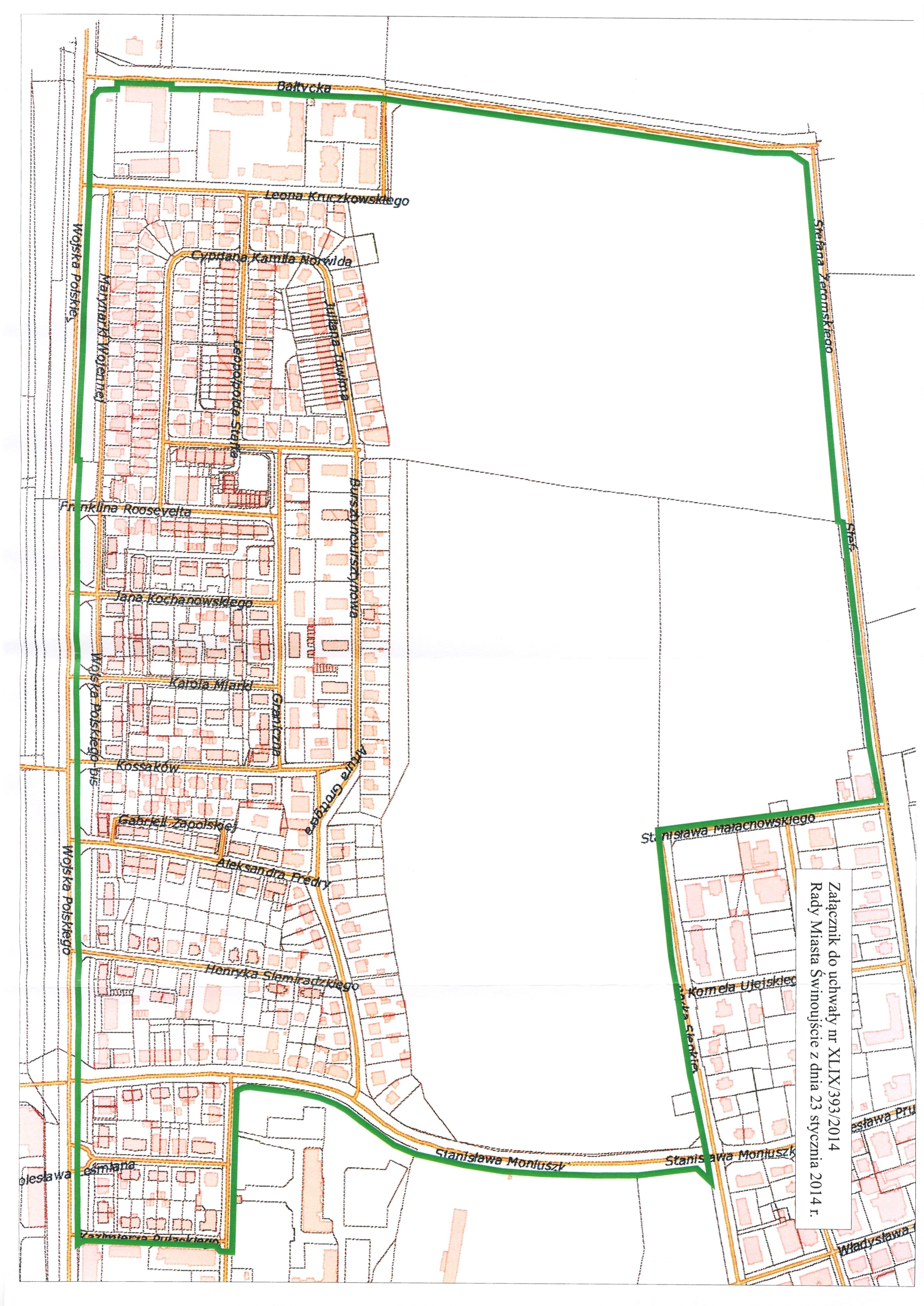
Na podstawie podjętej przez Radę Miasta Świnoujście Uchwały nr XLIX/393/2014 z dnia 23 stycznia 2014 r. Prezydent Miasta przystąpił do sporządzenia miejscowego planu zagospodarowania przestrzennego miasta Świnoujście w rejonie ul. Wojska Polskiego oraz osiedla Posejdon. Obszar miejscowego planu zagospodarowania przestrzennego obejmuje teren ograniczony ulicami: Wojska Polskiego, Bałtycką, Stefana Żeromskiego, Stanisława Małachowskiego, Henryka Sienkiewicza, Stanisława Moniuszki, Stanisława Wyspiańskiego i Kazimierza Pułaskiego.
Przedmiotem miejscowego planu jest m.in. uporządkowanie sposobu zagospodarowania a także uporządkowanie parcelacji oraz ustalenie zasad parkowania pojazdów i obsługi komunikacyjnej w tej części miasta.
Zainteresowani mogą składać wnioski do wyżej wymienionego planu miejscowego. Wnioski należy składać na piśmie w Urzędzie Miasta Świnoujście, ul. Wojska Polskiego 1/5, 72-600 Świnoujście, w nieprzekraczalnym terminie do dnia 23 kwietnia 2014 r.
Wniosek powinien zawierać nazwisko, imię, nazwę i adres wnioskodawcy, przedmiot wniosku oraz oznaczenie nieruchomości, której dotyczy.
Zobacz tutaj obszar objęty sporządzeniem planu
