Tu będzie parking na niemal 100 miejsc
Dodano: 217 tygodni temu
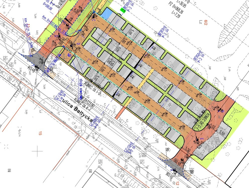
Przy ulicy Bałtyckiej przygotowywany jest teren pod budowę parkingu na 96 miejsc postojowych. Będą mogli tam parkować m.in. klienci pobliskiego targowiska czy osoby udające się na plażę.
Na zdjęciu u góry rzut na nowy parking z zaznaczonymi miejscami do parkowania.
Na zdjęciu nowy parking; na zielono i pomarańczowo zaznaczono nasadzenia zieleni, w tym nowych drzew.
Nowy parking ma uporządkować parkowanie w tej części naszego miasta. Będzie alternatywą dla dawnych tymczasowych miejsc postojowych wzdłuż ulicy Wojska Polskiego, z których korzystali przede wszystkim klienci pobliskiego targowiska. To także m.in. dodatkowe miejsca dla udających się na plażę wejściem na końcu ulicy Bałtyckiej. Istniejący tuż przy tym wejściu parking nie jest duży i w sezonie letnim często nie jest w stanie pomieścić wszystkich aut.
Budowa obejmuje także powstanie nowej drogi dojazdowej, oświetlenia, kanalizacji deszczowej. Dla potrzeb parkingu koniecznym jest usunięcie drzew i krzewów. Wiele z nich jest połamanych i przewróconych przez wiatry. W ich miejsce, już po zakończeniu budowy parkingu, zostaną nasadzone szpalery nowych drzew, a także ozdobnych krzewów i traw.
Na zdjęciach poniżej obecny stan tereny,
na którym powstanie parking.
BIK UM Świnoujście


.jpg)
.jpg)
.jpg)
.jpg)